Chủ đầu tư dự án CT2A Thạch Bàn thông báo nhận bổ sung hồ sơ 10 căn hộ, 69m2, 2 ngủ. LH: 01246983398
, , Long Biên,Hà Nội- Mã tin 13656
- Diện tích khu vực
- Diện tích sử dụng m2
- Vị trí Hà Nội
- Ngày cập nhật 18:31 17-04-2018
- Số người xem 1622
- Loại địa ốc Bán căn hộ chung cư
- Tình trang pháp lý Sổ hồng
- Hướng
- Số phòng
- Năm xây dựng
- Ráo Bán/Thuê Miễn trung gian
Thông tin chi tiết
Tổng công ty Bộ Quốc Phòng thông báo nhận bổ sung 10 hồ sơ các căn số 02, 03, 04, 06, 07, 14 và 15 do hồ sơ khách bị lỗi không đủ điều kiện đăng ký nên nhận bổ sung gấp, vào tên trực tiếp nhà ở xã hội CT2A Thạch Bàn.
1. Các căn tiếp nhận hồ sơ:
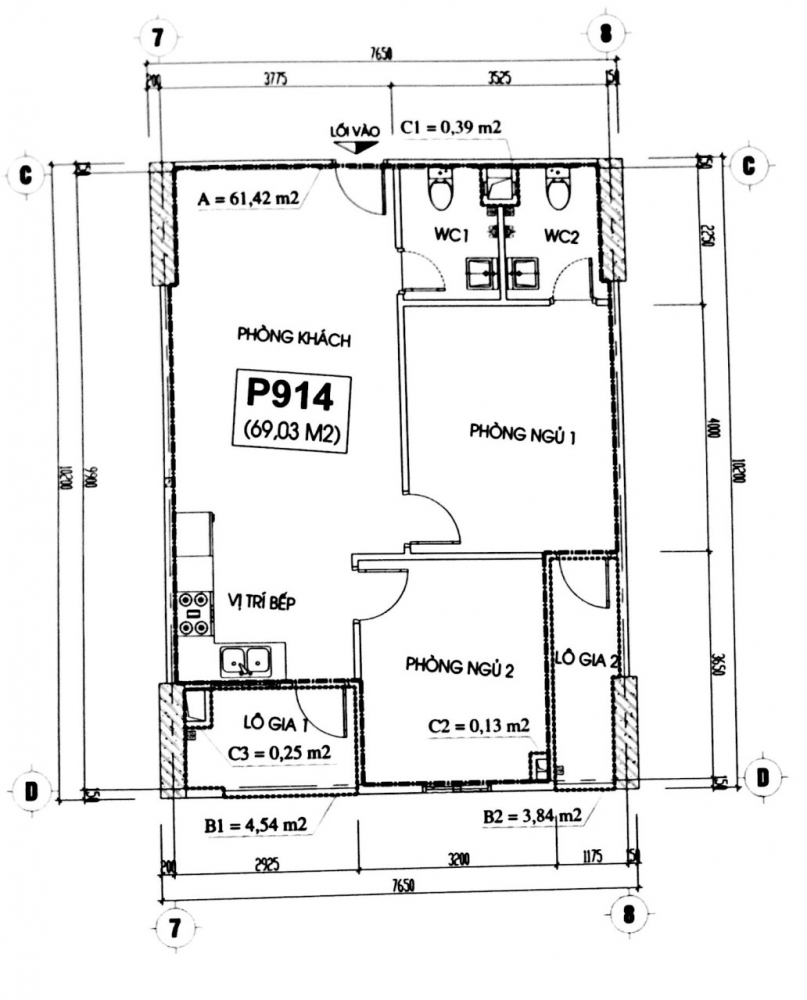
- 3 căn trục 02, 03 và 04: diện tích 69,03m2, hướng tây tứ mệnh, view sông Hồng, 2 lô gia.
- 4 căn trục 06 và 07: Diện tích 69,99 m2, hướng tây tứ mệnh
- 3 căn trục 14 và 15: Diện tích 68,86 m2, hướng Đông tứ mệnh.
=> Toàn bộ các căn đều thiết kế 2 phòng ngủ đều có cửa sổ thông thoáng, 2 phòng vệ sinh, nội thất bàn giao cơ bản.
2. Giá căn hộ (thông thuỷ):
- Giá gốc: 12.226.000 đồng/m2.
- Giá bán: 14.8-15 triệu đồng/m2 đã bao gồm VAT
- Ngân hàng VIB/ BIDV cho vay tối đa 70% GTCH.
3. Thời gian.
- Thời gian phê duyệt hồ sơ: Từ ngày 12/04/2018 đến hết ngày 23/04/2018.
- Thời gian ký hợp đồng mua bán: Từ ngày 24/04/2018 đến hết ngày 5/5/2018.
4. Để tránh tình trạng hồ sơ không đủ điều kiện và bị loại, mọi thắc mắc về đăng kí hồ sơ cũng như chọn căn liên hệ:
- Bộ phận tư vấn và hỗ trợ làm hồ sơ: 01246983398 (Mr Tùng).
Mặt bằng và tiến độ thanh toán xem tại đây: http://ct2athachban.info/chung-cu-ct2a-thach-ban/
Đặc điểm khác
+ Tiện để ở |
+ Gần trường ![]() |
+ Khu nội bộ ![]() |
+ Truyền hình cáp ![]() |
+ Tiện làm văn phòng ![]() |
+ Gần bệnh viện |
+ Có bảo vệ |
+ Điện thoại ![]() |
+ Tiện cho sản xuất |
+ Gần chợ - siêu thị |
+ Chỗ đậu xe hơi ![]() |
+ Đồng hồ nước ![]() |
+ Tiện kinh doanh ![]() |
+ Gần công viên ![]() |
+ Internet ![]() |
+ Đồng hồ điện |
+ Máy nước nóng |
+ Máy lạnh |
+ Hồ bơi | + Sân vườn ![]() |
- Thông tin liên hệ : Nguyễn Văn Tùng
- Điện thoại : 01246983398
- Email : minhtung.vnst@gmail.com
- Địa chỉ :
Vị trí nhà đất
Tiện ích xung quanh bản đồ
Bất động sản khác
-
chính chủ chuyển đổi bán a2.10 bt1-53 b2.2 bt10 lô 23 b2.4 bt2 lô 17 cienco thanh hà giá rẻ
Vị trí: Hà Nội Giá: 80 Triệu/m2 -
Bảng hàng liền kề giá rẻ tại Thanh Hà B tổ hợp B1.4 B2.3 B1.3 Cienco 5 Hà Đông
Vị trí: Hà Nội Giá: 10 Ngàn/Tổng diện tích -
Cho thuê kho Đà Lạt
Vị trí: Lâm Đồng Giá: 17 Triệu/Tháng -
BÁN 45 LÔ LIỀN KỀ & BIỆT THỰ GIÁ RẺ TẠI KHU ĐÔ THỊ THANH HÀ CIENCO 5 – ĐẤT ĐẸP
Vị trí: Hà Nội Giá: 73 Triệu/m2 -
Biệt thự 300m2 A2.2 Thanh Hà Cienco 5 giá rẻ, nhận đất xây ngay. 0888662811
Vị trí: Hà Nội Giá: Thỏa thuận -
Chính chủ bán biệt thự A2.2 A2.10 Thanh Hà Cienco 5 nhận nhà xây thô
Vị trí: Hà Nội Giá: 70000 Triệu/m2 -
Biệt thự B1.4 BT6 lô 01 góc chính view vườn hoa đường 14m Thanh Hà Cienco 5
Vị trí: Hà Nội Giá: 60 Triệu/m2 -
Biệt thự a2.5 sân gôn đường 60m vành đai 4 thanh oai 240m2
Vị trí: Hà Nội Giá: 60 Triệu/m2 -
Chỉ 2.7 tỷ nhà xây thô đất b1.1 thanh hà cienco 5 chính chủ bán
Vị trí: Hà Nội Giá: 32 Triệu/m2 -
4.5 tỷ bán luôn 100m2 liền kề b1.4 thanh hà cienco 5 gần chung cư
Vị trí: Hà Nội Giá: 45 Triệu/m2 -
Liền kề 90m2 B1.1 LK12 lô 14 B1.1 LK14 lô 15 Thanh Hà Cienco 5 giá rẻ
Vị trí: Hà Nội Giá: 35 Triệu/m2 -
Chính chủ thửa đất liền kề b1.1 lk11 lô 20 b1.2 lk6 lô 02 dt 90m2 100m2 cần bán
Vị trí: Hà Nội Giá: 35 Triệu/m2 -
Bán gốc chủ b1.4 lk17 lô 01 thanh hà cienco 5 giá đầu tư rẻ
Vị trí: Hà Nội Giá: 40 Triệu/m2 -
1 lô duy nhất b1.4 lk24 bán rẻ chính chủ thanh hà cieno 5 gốc đường 14m
Vị trí: Hà Nội Giá: 40 Triệu/m2 -
Bán 100m2 liền kề đường 17m hướng nam sát mặt kênh a2.4 thanh hà cienco 5 rất gấp
Vị trí: Hà Nội Giá: 32 Triệu/m2 -
Liền kề 117,5m2 2 mặt thoáng đường 17m hướng Đông Nam chỉ 38tr/m2
Vị trí: Hà Nội Giá: 32 Triệu/m2 -
Biệt thự 200m2 240m2 b1.1 a1.1 b1.3 chính chủ giá đầu tư rẻ
Vị trí: Hà Nội Giá: 45 Triệu/m2 -
Bán hàng loạt biệt thự VIP 200m2, 250m2 270m2 đường to lô góc KĐT Thanh Hà Cienco 5
Vị trí: Hà Nội Giá: 35 Triệu/m2 -
Biệt thự góc, vị trí VIP đường to 250m2 350m2 Thanh Hà Cienco 5 bán
Vị trí: Hà Nội Giá: 45 Triệu/m2 -
Liền kề a1.2 thanh hà đất hà đông 95m2 100m2 đường 14m 17m đẹp giá mềm đầu tư ngay
Vị trí: Hà Nội Giá: 32 Triệu/m2






